Vivienda en Vista Alegre

Volver a proyectos
Vivienda en Vista Alegre

Ubicada en una de las urbanizaciones más exclusivas del sur de Ibiza, la Casa en Vista Alegre se concibe como una vivienda integrada en la naturaleza, donde arquitectura, luz y paisaje dialogan en equilibrio.

El proyecto parte de una volumetría horizontal y sobria que se adapta a la topografía del terreno, orientando las vistas hacia el mar y el bosque mediterráneo. La fachada combina piedra natural gris, vidrio, aluminio y madera, empleando un lenguaje contemporáneo y atemporal que refuerza la pureza formal del conjunto.

El jardín, diseñado como una extensión viva de la vivienda, aporta frescura, serenidad y color al espacio exterior, suavizando la rotundidad geométrica de la construcción. Con el paso del tiempo, la vegetación ha crecido y madurado, envolviendo la casa en un ambiente de calma y armonía. El contraste entre la piedra gris de la fachada, el verde intenso de las plantas y el azul del cielo genera una atmósfera vibrante en la que la naturaleza completa y transforma la arquitectura.

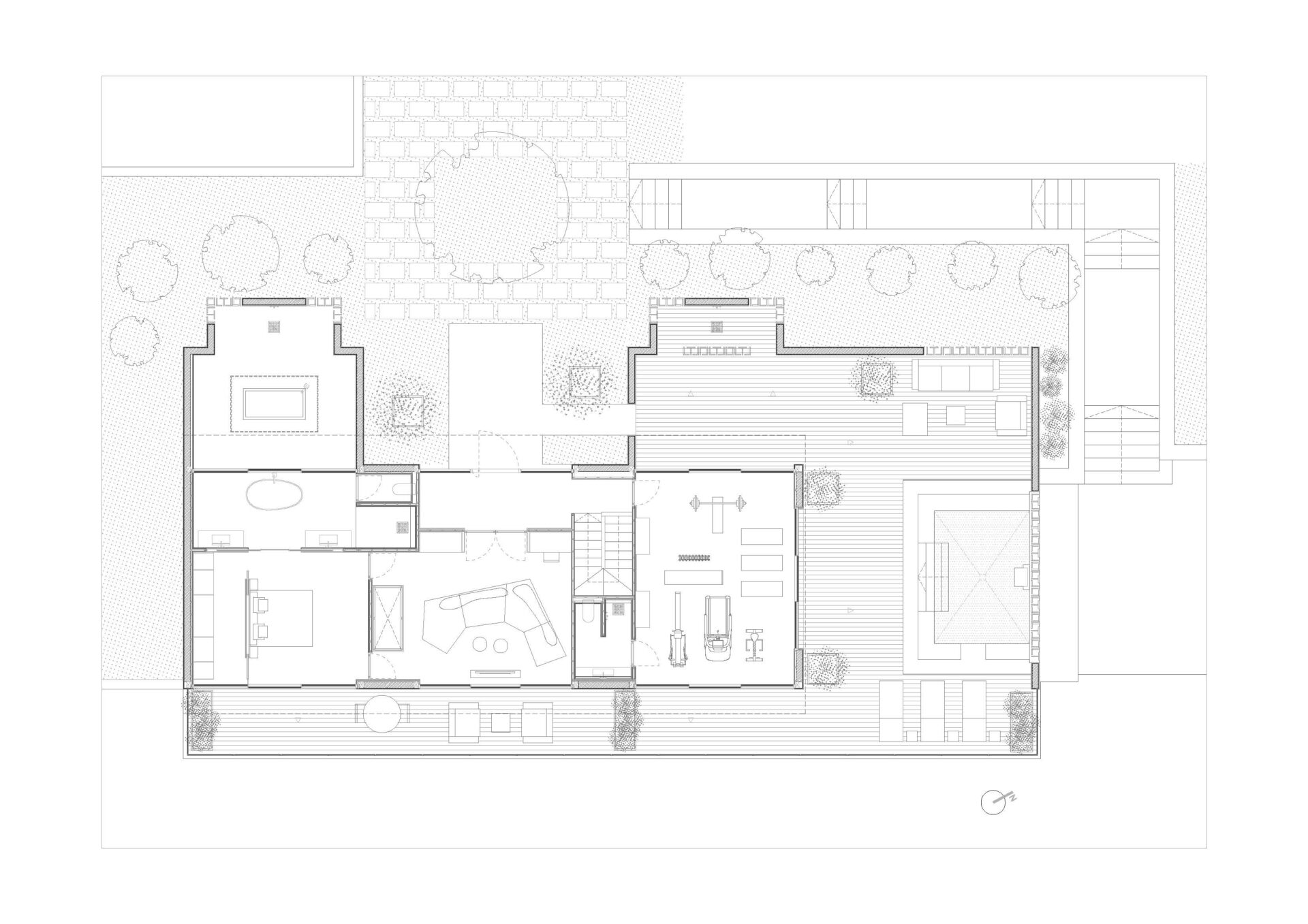
Los interiores, definidos por la pureza de líneas y la continuidad material, emplean travertinos, mármoles y maderas naturales que se prolongan hacia los espacios exteriores, unificando terrazas, piscina y zona de spa.

La piscina, enmarcada por muros de piedra y madera, constituye un refugio de privacidad y serenidad. En el nivel superior, las terrazas con barandillas de vidrio permiten una inmersión total en el paisaje, diluyendo los límites entre interior y exterior.

El resultado es una arquitectura elegante, esencial y luminosa, que reinterpreta el lujo desde la sencillez, la materia y la conexión con la naturaleza.

  • UbicaciónVista Alegre, Sant Josep
  • TipologíaVivienda unifamiliar + piscina
  • Superficie construidaPB 270m² - PP 175m²
  • Año de construcción2022
  • Piscina13 m²
  • AparejadorJosep Mauri

Greyone Pprimera
Greyone Pbaja