Retiro 37

El proyecto consiste en la rehabilitación de una vivienda tradicional situada en la calle Retir y su ampliación en una nueva planta superior. La intervención conserva la esencia constructiva original del barrio de Sa Penya, integrando los nuevos elementos con un lenguaje respetuoso y sereno.

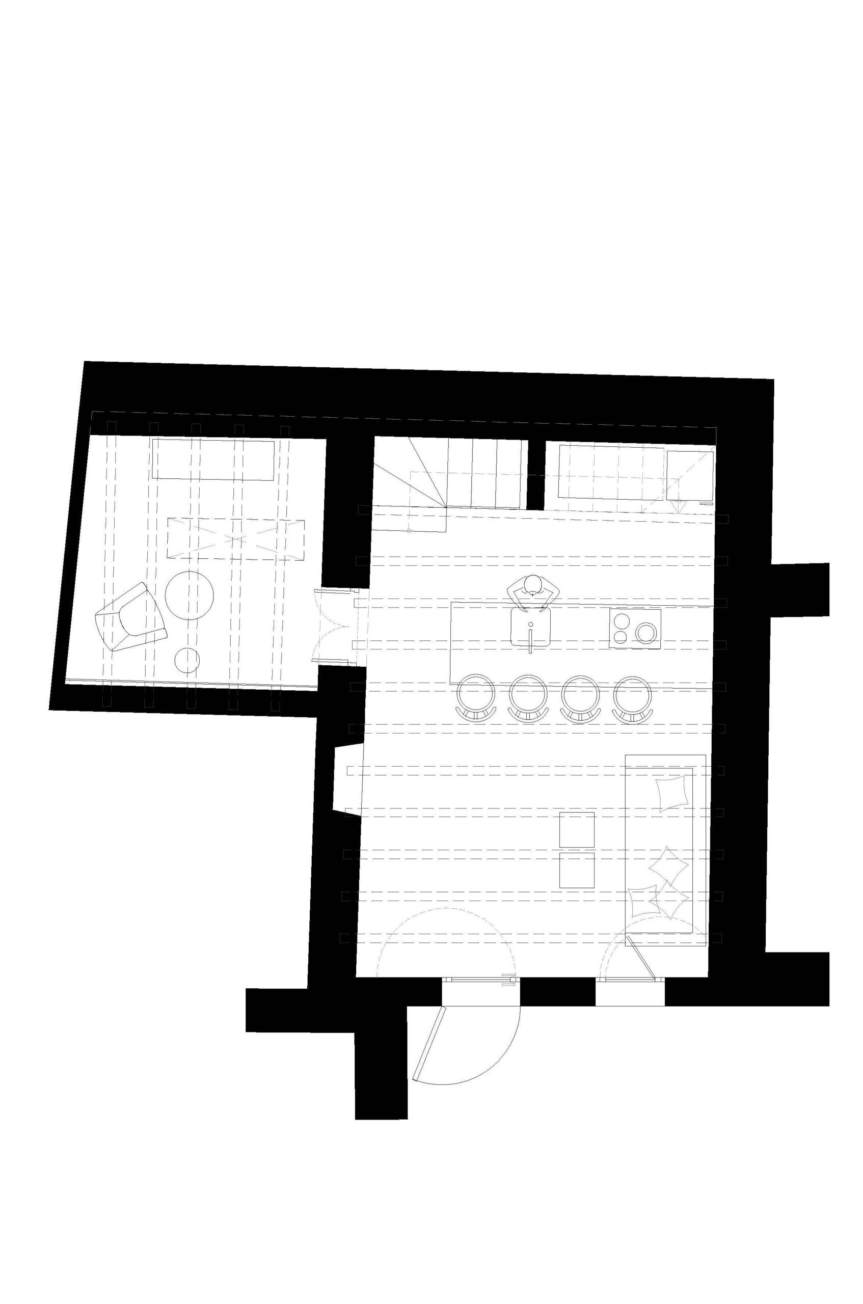
En planta baja, el acceso desde la calle conduce a un espacio único de salón, comedor y cocina, articulado por una gran isla central de piedra natural. Las paredes de mampostería vista, los techos de vigas de pino y el pavimento continuo de piedra beige definen una atmósfera cálida, donde la textura y la luz dialogan de forma natural.

Al fondo, una escalera construida en obra, con barandilla de hierro pintada en negro, asciende hacia la planta primera, donde se sitúa la zona privada. En este nivel, el dormitorio principal se abre a la calle mediante una ventana balconera, mientras que el baño, revestido con azulejo artesanal en tonos arena, recibe luz natural a través de un lucernario cenital. La bañera exenta, el mobiliario de madera y las luminarias de fibras vegetales aportan una sensación de calma y retiro.

Desde el dormitorio, junto al armario y la lavandería integrada, se accede a un patio exterior que, mediante otra escalera de obra, conduce a la cubierta transitable. Desde allí se disfrutan vistas abiertas a la bahía, Formentera y las murallas del baluarte de Santa Llúcia.

El uso de materiales nobles —piedra, cal, madera y hierro— y una paleta de tonos neutros y texturas naturales definen una estética honesta, equilibrada y sin artificio.
Retiro 37 es una obra que celebra la autenticidad de lo construido, la permanencia de la materia y la calma que habita en los espacios sencillos.

  • UbicaciónSa Penya, Ibiza
  • TipologíaReforma y ampliación vivienda
  • Superficie construida83 m²
  • Año de construcción2021–2025
  • AparejadorRoberto Marín
  • ConstructorVasile Sircom
  • InterioristaAnna Buckhart
  • FotografíaLuana Faillaph

Retiro 37 Pb
Retiro 37 P1